
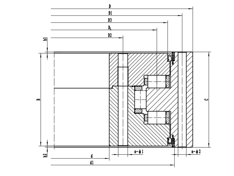
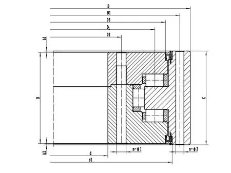
三排滚柱式主轴承结构上由两排推力滚子和一排径向滚子组成,一般有外圈组合内圈整体和外圈整体内圈组合两种结构其结构;由于结构强度大、承载能力强,故多用于直驱式风力发电机等,可抵御风机气动载荷产生的轴向力、径向力和倾覆力矩。轴承各部位滚子承载力分工明确,充分发挥各承载滚子的承载效能,具有较大的轴向力、径向力和倾覆力矩的承载能力及刚性,受载后轴承变形小,安全系数高,可靠性高;内部采用合金保持架,结构强度高,耐磨性能优,发热小。
我们公司已经在2011年实现了替代进口产品,用该产品所装风机运行时间已接近14年,运行状态良好。