洛阳新强联回转支承股份有限公司
  • 
    • English中文
  • 首页
  • 关于我们 +
    • 公司介绍
    • 发展历程
    • 资质证书
  • 公司优势 +
    • 研发与创新
    • 生产能力
    • 质量控制
  • 产品 +
    • 市场 +
      • 风电能源
      • 盾构机
      • 摩天轮
      • 港口机械
      • 工程机械
      • 矿山机械
      • 堆取料机
      • 浮吊船
      • 机床
      • 冶金设备
    • 服务 +
      • 轴承的定制
      • 轴承的安装与调试
      • 轴承的检查与维护
      • 轴承备件的更换以及维修
      • 轴承备件服务以及物流运输
    • 视频
    • 联系信息
    刀盘主轴承

    刀盘主轴承

    • 首页
    • 产品
    • 盾构机轴承
    • 刀盘主轴承
    刀盘主轴承

    盾构机作为一种重要的地下隧道建设设备,刀盘主轴承是核心部件之一,其作用是支撑和引导主轴转动,同时承受巨大的轴向力、径向力和倾覆力矩。主要用于盾构机、顶管机等掘进设备。

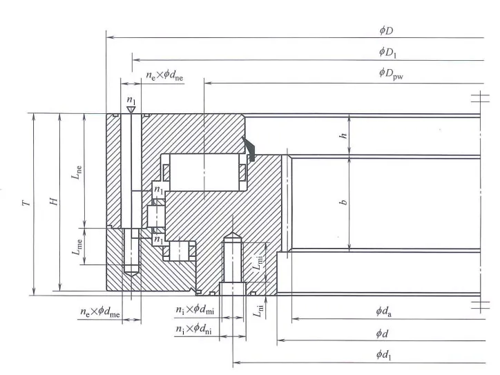
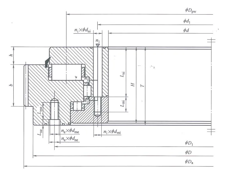
    刀盘主轴承为三排圆柱滚子结构,有内齿式、外齿式、无齿式三种形式,均由套圈(内圈+外圈)、滚子、保持架、密封圈组成。

    询价
    基本信息
    • 材料选用:客户无特殊要求时一般选用42CrMo4-L材质(内部材料),滚道中频淬火。也可根据客户提供的具体条件及要求选用其他牌号的钢种。
    • 加工能力:目前已加工最大外径8.010米,齿轮模数:最大m=30
    • 定制产品:可根据用户的要求定制各种非标产品。
    • 维修:除了设计、制造盾构机用主轴承,公司还承接了很多盾构机用主轴的检测和维修工作。
    • 公司优势:我们是行业主轴承JB/T14575-2023标准制定者之一,并且近几年检测和维修过上百个主轴承
    刀盘主轴承
    刀盘主轴承
    刀盘主轴承
    客户案例
    中国沈阳地铁项目
    中国沈阳地铁项目

    直径3米的盾构机主轴承,用于中国沈阳地铁工程项目

    直径8米盾构机轴承项目
    直径8米盾构机轴承项目

    和中科院联合开发的超大型直径8米盾构机主轴承

    我们能提供的相关产品

    我们的主要产品包括风力发电机组主轴承、偏航轴承、变桨轴承、齿轮箱轴承、船用设备回转支承、隧道掘进机轴承及部件、风力发电机锁紧盘、联轴器等等。

    驱动盘
    驱动盘

    驱动盘作为盾构机主驱动环件系列的核心零部件之一,用于驱动盾构机的刀盘旋转从而实现切割土层的目的,和盾构机主轴承及盾构机刀盘联接,传递力和力矩。 驱动盘结构可分为整体式、焊接式。广泛用于盾构机、顶管机等掘进设备。

    刀盘主轴承
    刀盘主轴承

    盾构机作为一种重要的地下隧道建设设备,刀盘主轴承是核心部件之一,其作用是支撑和引导主轴转动,同时承受巨大的轴向力、径向力和倾覆力矩。主要用于盾构机、顶管机等掘进设备。

    其他产品
    大型海工装备回转支承
    大型海工装备回转支承 查看更多
    轴承零件
    轴承零件 查看更多
    关节轴承
    关节轴承 查看更多
    通用型回转支承
    通用型回转支承 查看更多
    风电轴承
    风电轴承 查看更多
    洛阳新强联回转支承股份有限公司
    lyxql01@163.com
    +86-379-62811090
    联系我们
    公司优势
    • 研发与创新
    • 生产能力
    • 质量控制
    服务
    • 轴承的定制
    • 轴承的安装与调试
    • 轴承的检查与维护
    • 轴承备件的更换以及维修
    • 轴承备件服务以及物流运输
    产品
    • 通用型回转支承
    • 关节轴承
    • 风电轴承
    • 盾构机轴承
    • 大型海工装备回转支承
    • 轴承零件
    市场
    • 风电能源
    • 盾构机
    • 摩天轮
    • 港口机械
    • 工程机械
    • 矿山机械
    • 堆取料机
    • 浮吊船
    • 机床
    • 冶金设备